Komádiban a központhoz közel jó állapotú 142 nm-es padlásszobás családi ház eladó
Komádi,
Hajdú-Bihar
21.900.000 Ft
Share this:
Eladó
Azonosító: s248
Ingatlan típusa: Családi ház
Alapterület (M 2)
142
Szoba
3
Fürdőszoba
2
Garázs
1
The space
Land Size: 700 M 2
Amenities
Beépített konyhabútor
Csendes
Felújított
Garázs
Gáz
Hőszigetelt
Ipari áram
Jó elosztású
Kert
Központi fűtés
Laminált parketta
Légkondicionált
Melléképület
Műhely
Összkomfortos
Redőnyös
Terasz
Villany
Víz
Leírás
Hajdú-Bihar vármegyében, Komádiban a központhoz közel 142 m2-es, nagyon jó adottságú emeletes ház, kellemes 700 m2-es portán ELADÓ !
Otthonteremtő fiataloknak, egy többgyermekes családnak vagy 2 generációnak ajánlom !
IR.ÁR: 23,9 M Ft
Elhelyezkedés :
Hajdú-Bihar vármegye, Komádi, Bocskai utca, a központtól 450 m
Szeghalom 25 km, Berettyóújfalu 35 km, Nagyvárad 50 km, Nagyszalonta 45 km, a román határátkelő 15 km
Tulajdonságai, adottságai :
– 1982-ben épült , B30-as tégla falazattal , beton alappal , lábazattal és födémmel , 5 cm hőszigetelést és nemes vakolatot kapott a homlokzat
– a villamos hálózata csőben futó réz vezetékkel készült , 3x 25 Amperes ipari áram és éjszakai áram is megtalálható , földeléssel
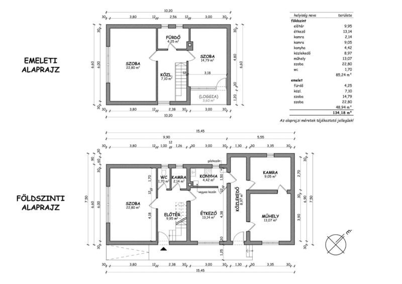
– a 86 m2-es 2 bejárattal rendelkező földszinten : 1 tágas szoba , előtér-lépcsőház , étkező , tusoló , WC , főzőfülke-kazánház , közlekedő , kamra és fűtött meleg vízzel ellátott nyári konyha található
– új biztonsági bejárati ajtók kerültek beszerelésre ill . 6 éve a földszintre , egy jelenleg újszerű állapotú , alig használt 3,5 KW-os inverteres klíma
– az 55,7 m2-es emeleten : 1 tágas ( akár meg is osztható ) nagy szoba , egy kisebb szoba , 1 közlekedő-előtér , 1 fürdőszoba+WC , és 1 loggia található
– a fűtést 5 éves 24 KW-os Hajdú típusú kondenzációs kazán és egy 6 éves vegyes tüzelésű kazán biztosítja
– a meleg vizet éjszakai áramról üzemelő villanybojler és 195 l-es hőtárolós tartállyal rendelkező 2×24 KW teljesítményű napkollektor biztosítja , mely a meleg vizet tavasztól-őszig költségmentessé teszi és a fűtésbe is besegít
– a bejáratok akadálymentesítettek , rámpás feljáró került kialakításra a 13,5 m2-es fedett folyosóra , a lépcsők helyett
– az udvaron megtalálható egy kerti kifolyó és egy könnyűszerkezetes 14,6 m2-es betonozott tároló helyiség , ami kerékpárok és kerti szerszámok , fűnyíró stb. számára ideális
– a porta 3 részre tagolódik , amit lemez kerítések biztosítanak , a középső részben helyezkedik el egy 47,5 m2-es betonozott szín és tégla falazatú ólak , a közel 12 m-es szín kocsibeállóként ill. igény szerint teraszként is használható , az ólak elbontásával tágas terasz , kerti sütögetős hely vagy többállásos beálló , vagy akár mindkettő kialakítható belőle , az utolsó kert rész pl. gyümölcsösként hasznosítható
– a 700 m2-es telket minden oldalon stabil kerítés határolja
– belmagasság 2,76 m , az egyéb épületben 2,3 m
A közelben és a faluban megtalálható pékség , pizzéria , üzletek , posta , hivatal , buszmegálló , edzőterem , általános iskola, patika, rendelőintézet , bölcsőde , benzinkút , óvoda , állatorvos , több horgásztó és a Sebes Körös stb.
Kommunális adó 4000 Ft/év
Internet szolgáltatók : T-COM és One
A szomszédság barátságos , békés , nyugodt.
Tehermentes tulajdon, térképszelvénye teljesen megegyezik a valósággal, finanszírozható bármilyen banki konstrukcióval.
Kedves Látogató! Tájékoztatjuk, hogy a honlap felhasználói élmény fokozásának érdekében sütiket alkalmazunk. A honlapunk használatával ön a tájékoztatásunkat tudomásul veszi.